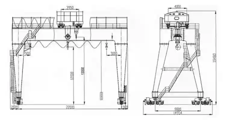
A type double girder gantry crane with hook is suitable for open storage, along railway operations for general handling and lifting work. A type door frame structure, on the top of it there is a saddle structure , reasonable force, and it is the most widely used double girder gantry crane. According to their structure, can be divided into boxes-MG, rated lifting weight is 5~320t and reduced wind resistance design of truss structure of MGH, rated capacity is 5~50T.


The A - type double girder gantry crane equipped with a hook is an incredibly versatile and efficient solution for a wide range of industrial applications. In open storage yards, it serves as a workhorse. Whether it's large - scale lumberyards with numerous timber piles, or scrap yards filled with metal debris, this crane can easily lift and relocate materials. Along railway operations, it plays a crucial role. It's capable of quickly loading and unloading cargo from freight cars. General handling tasks, such as moving heavy machinery parts or large - sized equipment, are no match for its powerful lifting capacity. With its sturdy structure and precise control system, it ensures smooth and safe lifting work, making it an indispensable asset in these working scenarios.