Double Girder Overhead Crane
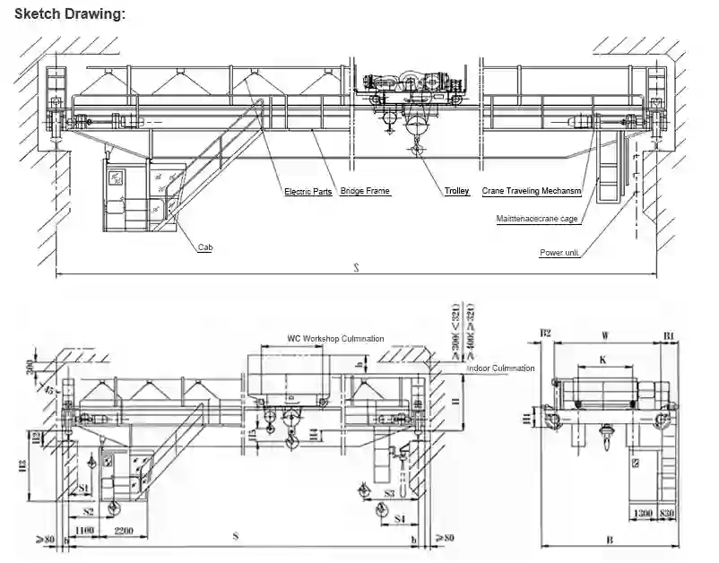
QD type hook crane is a series of products manufactured by international advanced standards. It mainly consists of bridge frame, cart running mechanism, trolley and electrical equipment. The whole machine has novel structure, beautiful appearance, good craftsmanship, flexible and stable operation, safe and reliable. Its working level is A5-A6, and the working temperature is -20 °C -40 ° C.
Double Girder Overhead Crane is widely used for loading and unloading and handling of heavy objects. It can also be equipped with a variety of special cranes for special operations. It is equipped with rainproof equipment when used in the open air. When selecting, indicate the technical requirements of the working system, the highest and lowest temperature of the working environment and the type of power supply. It can also be designed and manufactured according to the span required by users.


The Double Girder Overhead Crane stands as an indispensable heavy - duty solution across numerous industrial landscapes. Thanks to its robust design and high - load capacity, it’s extensively deployed in ports for loading and unloading massive shipping containers. In steel mills, it maneuvers large steel coils and heavy machinery parts with ease.
Beyond standard operations, the crane can be customized with various attachments. For instance, magnetic cranes are installed to handle ferromagnetic materials like iron and steel sheets. Grab bucket cranes are added for scooping up bulk materials such as sand, gravel, and coal. This adaptability makes the Double Girder Overhead Crane highly versatile, meeting the diverse and complex demands of different industries for handling heavy objects.